Godrej United verified_user

share

place Whitefield , ITPL Main Road , Bangalore

star_rate star_rate star_rate star_rate star_rate 0 Reviews

zoom_out_map 613 - 2958 Sq.Ft

50 Lacs to 2.25 Cr

Property Sub Type
Apartment
Project Status
New Launch
near_me Contact

Free Site Visit

near_me Contact

By clicking Submit, you agree to send your info to Zricks.com Private Limited, who agrees to use it according to their Privacy Policy , Terms & Conditions ,Cookies Policy.

Key Details in Godrej United

Possession

Quarter 1, 2017

Project Span

8 Acre

Type

Original Booking, Resale

No. of Towers

2

Bank Approved

Yes

Furnished

New Launch

No. of Units

520

Approved By

BDA

Godrej United is a residential project located at Whitefield, Whitefield Main Road, Bangalore. It is a unique project which offers 1,2,3 and 4 BHK homes and completes the package with a number of useful features and amenities for all residents. These apartments are meticulously designed along with the rest of the project site. Bangalore is one of the hotspots for residential development and therefore has a lot of growth potential. Godrej United is backed by the Godrej Properties , one of the most trusted real estate developers in India, and is therefore a prime choice for a wholesome life experience.

Project USP

  • A completely gated community that promotes a sense of community living along with privacy
  • Project provides all the basic amenities that are required to meet all your needs
  • 3-tiered stringent security measures to ensure the safety of all students
  • Covered parking area with reserved spaces for all residents
  • Separate parking spaces for all guests and visitors
  • Several civic amenities such as premium schools, medical centers and hospitality outlets in the neighbourhood
  • Lush green surroundings and exquisite landscaping around the residential units
  • 100 % power back up for building and all common facilities to ensure smooth and uninterrupted running of the same
Godrej United Rera

Authority: Karnataka Real Estate Regulatory Authority RERA REGISTERED info

RERA Registration No: PR/KN/170729/000003

Address

Godrej United, Whitefield, Whitefield Main Road, Bangalore
Type Unit Type Plot Size Size Floor Plan Quote
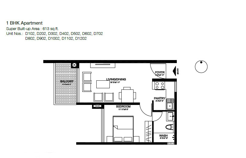
Apartment 1 BHK 613 Sq. Ft. 613 Sq. Ft. aspect_ratio email
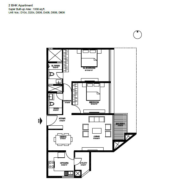
Apartment 2 BHK + Utility 1338 Sq. Ft. 1338 Sq. Ft. aspect_ratio email
Apartment 2 BHK + Study + Utility 1459 Sq. Ft. 1459 Sq. Ft. aspect_ratio email
Apartment 2 BHK + Utility 1831 Sq. Ft. 1831 Sq. Ft. aspect_ratio email
Apartment 3 BHK + Utility 2137 Sq. Ft. 2137 Sq. Ft. aspect_ratio email
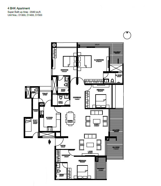
Apartment 4 BHK + Utility + S R 2949 Sq. Ft. 2949 Sq. Ft. aspect_ratio email
Apartment 4 BHK + Utility + S R 2958 Sq. Ft. 2958 Sq. Ft. aspect_ratio email

Indoor Amenities

24X7 Power Back up
Air Conditioning
Intercom Facility
Servant Quarters
Vaastu Compliant

Outdoor Amenities

Garden
Health Facilities
Maintenance Staff
Club House
Broadband Connectivity
Cafeteria
Gym
Covered Parking
Open Parking
Conference Room
Joggers Track
Kids Play Area
Landscaped Park
Lawn Tennis Court
Lift
Multi Purpose Court
Squash Court
Swimming Pool
Visitor Parking
24X7 Security

Free Site Visit

near_me Contact

By clicking Submit, you agree to send your info to Zricks.com Private Limited, who agrees to use it according to their Privacy Policy , Terms & Conditions ,Cookies Policy.

local_offer Don't miss out on the festive offers this month

Location Advantage

  • Phoenix Market City - 0.7 KM
  • The Taj Vivanta - 2 KM
  • ITPB - 2 KM
  • Gopalan National School - 1 KM
  • Columbia Asia Hospital
  • Vydehi Hospital - 4 KM
  • K R Puram Junction - 3 KM
  • Jagriti Theatre & Performing Arts Centre
  • Counter Culture - 0.2 KM
  • Decathlon Sports - 0.1 KM

360° Virtual Tour

Godrej United 360° Virtual Tour

You are Invited to Join 360° Virtual Tour

of Godrej United

Godrej United Walkthrough

Free Site Visit

near_me Contact

By clicking Submit, you agree to send your info to Zricks.com Private Limited, who agrees to use it according to their Privacy Policy , Terms & Conditions ,Cookies Policy.

Godrej United Update

Questions & Answers (FAQs)

  • help What is the price range of Godrej United?
    The price range of Godrej United is 50.0 Lacs. to 2.2 Cr.
  • help Is Godrej United RERA Registered? If Yes, What is the RERA Registration No of Godrej United?
    Godrej United is registered under KNRERA. The RERA Registration No of Godrej United is PR/KN/170729/000003.
  • help What is the size or area range of Godrej United?
    The size range of Godrej United ranges between 613 to 2958 Sq.Ft
  • help Where is Godrej United located?
    The site address of Godrej United is Godrej United, Whitefield, Whitefield Main Road, Bangalore.
  • help What is the construction status of Godrej United?
    The status of Godrej United is New Launch .
  • help What is the possession date of Godrej United?
    The possession date of Godrej United is Quarter 1 2017.

50+

Questions

View all Questions

50+

Answers

View all Answers

Ask a Question About
Godrej United

You're Invited to Open House this weekend!

calendar_today 29 Jan - 01 Feb 2026

Thursday to Sunday, 10 am onwards
Visit Godrej United site to get On Spot Festive Benefits.

Invite code: Zricks.com

About Developer

Godrej Properties Ltd is an extremely well known builder in the real estate sector and is under the wing of the prominent electronics and FMCG manufacturer Godrej India Pvt Ltd. Established in 1990, Godrej Properties has already made great strides in the real estate sector and is widely known for their residential and commercial properties. Their vision is to be among the nation's top 3 real estate companies, while continuing to be the most trusted name in the industry. Aiming to deliver superior value to all their stakeholders by taking into account all their consumer insight, Godrej Properties is a very well known organization.
 

Godrej Properties Limited is the first real estate company to have ISO certification. With projects that span across the country, the company's upcoming development covers 74 million square feet. To create landmark structures, Godrej Properties collaborates with outstanding associates and reputed names. The company aims to deliver superior value to all stakeholders through extraordinary and imaginative spaces created out of deep customer focus and insight.
 

Under the leadership of their Chairman, Adi Godrej, Godrej Properties has really come far since its birth. With a plethora of residential and commercial projects in the pipeline, one can rest assured that this is a name to trust. 

Nearby Projects

Request a Call Back

near_me Get Expert Advice Now

By clicking Submit, you agree to send your info to Zricks.com Private Limited, who agrees to use it according to their Privacy Policy , Terms & Conditions ,Cookies Policy.

Property Expert from ITPL Main Road is Available.