Godrej Woodsman Estate

share

place Hebbal , Dasarahalli Main Road , Bangalore

star_rate star_rate star_rate star_rate star_rate 0 Reviews

zoom_out_map 1272 - 3400 Sq.Ft

1.25 Cr to 3.20 Cr

Property Sub Type
Apartment
Project Status
Ready To Move
near_me Contact

Free Site Visit

near_me Contact

By clicking Submit, you agree to send your info to Zricks.com Private Limited, who agrees to use it according to their Privacy Policy , Terms & Conditions ,Cookies Policy.

Key Details in Godrej Woodsman Estate

Possession

Quarter 4, 2010

Project Span

15 Acre

Type

Resale

No. of Towers

7

Bank Approved

Yes

Furnished

Ready To Move

No. of Units

924

Approved By

BDA

Godrej Woodsman Estate is a residential project located at Hebbal, Dasarahalli Main Road, Bangalore. It is a unique project which offers 2,3 and 4 BHK homes and completes the package with a number of useful features and amenities for all residents. These apartments are meticulously designed along with the rest of the project site. Bangalore is one of the hotspots for residential development and therefore has a lot of growth potential. Godrej Woodsman Estate is backed by the Godrej Properties , one of the most trusted real estate developers in India, and is therefore a prime choice for a wholesome life experience.

Project USP

  • A completely gated community that promotes a sense of community living along with privacy
  • Project provides all the basic amenities that are required to meet all your needs
  • 3-tiered stringent security measures to ensure the safety of all students
  • Covered parking area with reserved spaces for all residents
  • Separate parking spaces for all guests and visitors
  • Several civic amenities such as premium schools, medical centers and hospitality outlets in the neighbourhood
  • Lush green surroundings and exquisite landscaping around the residential units
  • 100 % power back up for building and all common facilities to ensure smooth and uninterrupted running of the same

Address

Godrej Woodsman Estate, Hebbal, Dasarahalli Main Road, Bangalore
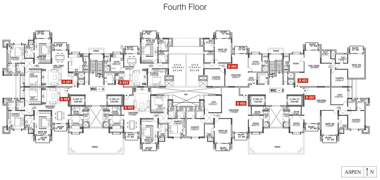
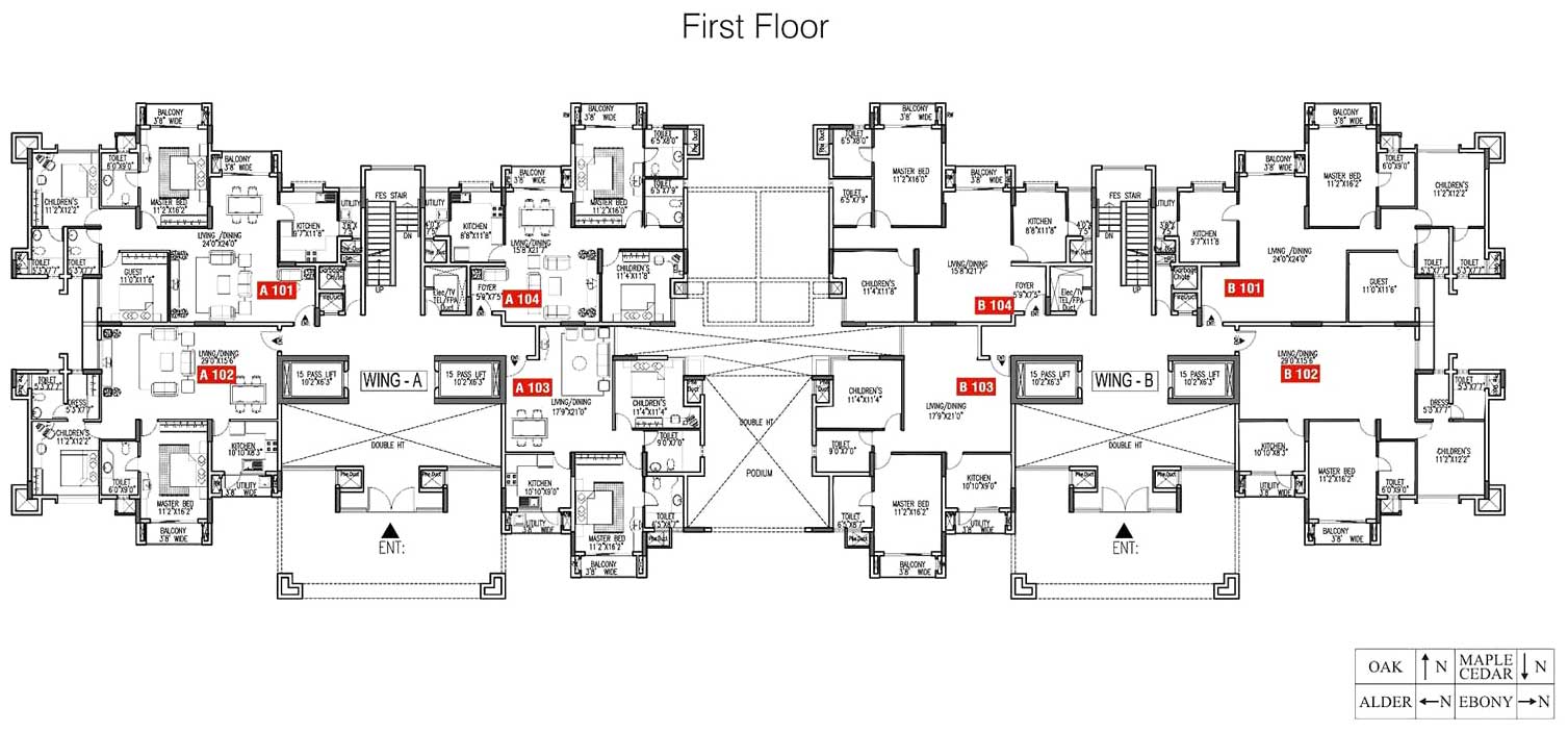
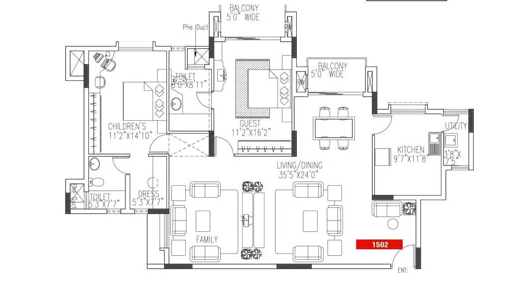
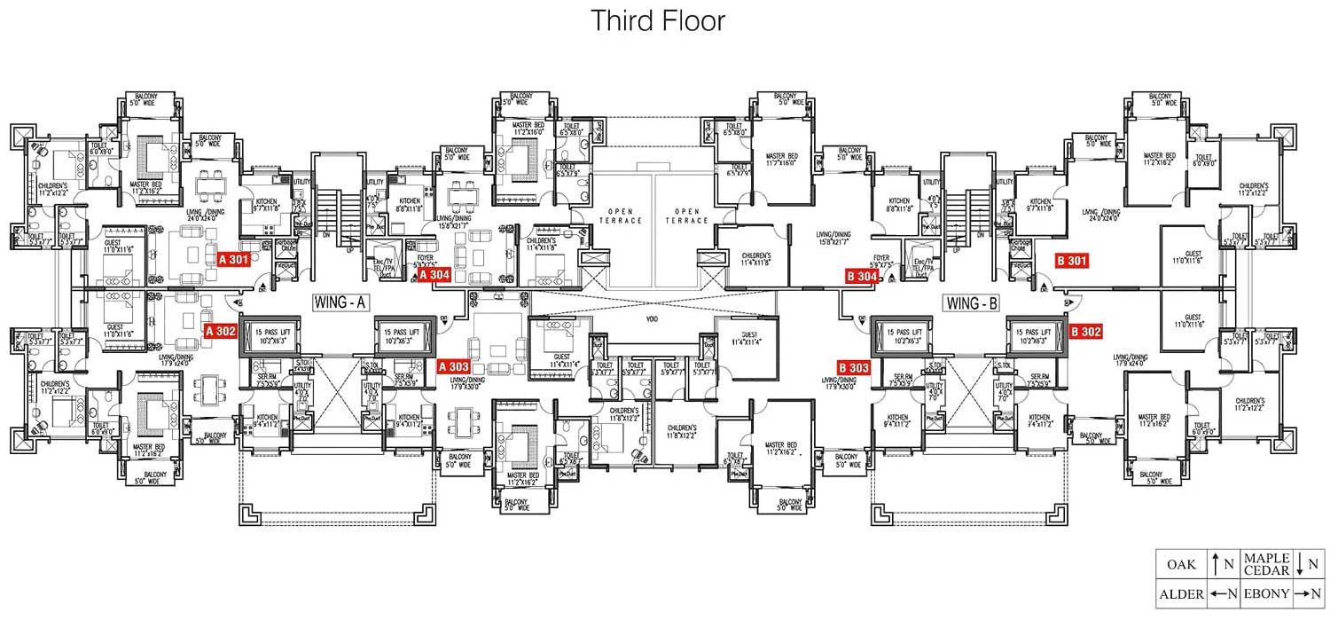
Type Unit Type Plot Size Size Floor Plan Quote
Apartment 2 BHK 1272 Sq. Ft. 1272 Sq. Ft. aspect_ratio email
Apartment 2 BHK + F Lounge 1459 Sq. Ft. 1459 Sq. Ft. aspect_ratio email
Apartment 3 BHK 3400 Sq. Ft. 3400 Sq. Ft. aspect_ratio email

Indoor Amenities

24X7 Power Back up
Air Conditioning
Intercom Facility
Vaastu Compliant

Outdoor Amenities

Garden
Club House
Broadband Connectivity
Covered Parking
Open Parking
Joggers Track
Kids Play Area
Landscaped Park
Lift
Multi Purpose Court
Swimming Pool
Visitor Parking
24X7 Security

Free Site Visit

near_me Contact

By clicking Submit, you agree to send your info to Zricks.com Private Limited, who agrees to use it according to their Privacy Policy , Terms & Conditions ,Cookies Policy.

local_offer Don't miss out on the festive offers this month

Location Advantage

  • Located at  Hebbal, Dasarahalli Main Road, Bangalore
  • Easy connectivity to major areas of city
  • Major schools and hospitals situated at a distance of 5 km
  • Schools and Universities are in proximity to the society

360° Virtual Tour

Godrej Woodsman Estate 360° Virtual Tour

You are Invited to Join 360° Virtual Tour

of Godrej Woodsman Estate

Godrej Woodsman Estate Walkthrough

Free Site Visit

near_me Contact

By clicking Submit, you agree to send your info to Zricks.com Private Limited, who agrees to use it according to their Privacy Policy , Terms & Conditions ,Cookies Policy.

Questions & Answers (FAQs)

  • help What is the price range of Godrej Woodsman Estate?
    The price range of Godrej Woodsman Estate is 1.2 Cr. to 3.2 Cr.
  • help What is the size or area range of Godrej Woodsman Estate?
    The size range of Godrej Woodsman Estate ranges between 1272 to 3400 Sq.Ft
  • help Where is Godrej Woodsman Estate located?
    The site address of Godrej Woodsman Estate is Godrej Woodsman Estate, Hebbal, Dasarahalli Main Road, Bangalore.
  • help What is the construction status of Godrej Woodsman Estate?
    The status of Godrej Woodsman Estate is Ready To Move .
  • help What is the possession date of Godrej Woodsman Estate?
    The possession date of Godrej Woodsman Estate is Quarter 4 2010.

50+

Questions

View all Questions

50+

Answers

View all Answers

Ask a Question About
Godrej Woodsman Estate

You're Invited to Open House this weekend!

calendar_today 29 Jan - 01 Feb 2026

Thursday to Sunday, 10 am onwards
Visit Godrej Woodsman Estate site to get On Spot Festive Benefits.

Invite code: Zricks.com

About Developer

Godrej Properties Ltd is an extremely well known builder in the real estate sector and is under the wing of the prominent electronics and FMCG manufacturer Godrej India Pvt Ltd. Established in 1990, Godrej Properties has already made great strides in the real estate sector and is widely known for their residential and commercial properties. Their vision is to be among the nation's top 3 real estate companies, while continuing to be the most trusted name in the industry. Aiming to deliver superior value to all their stakeholders by taking into account all their consumer insight, Godrej Properties is a very well known organization.
 

Godrej Properties Limited is the first real estate company to have ISO certification. With projects that span across the country, the company's upcoming development covers 74 million square feet. To create landmark structures, Godrej Properties collaborates with outstanding associates and reputed names. The company aims to deliver superior value to all stakeholders through extraordinary and imaginative spaces created out of deep customer focus and insight.
 

Under the leadership of their Chairman, Adi Godrej, Godrej Properties has really come far since its birth. With a plethora of residential and commercial projects in the pipeline, one can rest assured that this is a name to trust. 

Nearby Projects

Request a Call Back

near_me Get Expert Advice Now

By clicking Submit, you agree to send your info to Zricks.com Private Limited, who agrees to use it according to their Privacy Policy , Terms & Conditions ,Cookies Policy.

Property Expert from Dasarahalli Main Road is Available.