DLF Big 10

share

place DLF Phase III , NH 8 , Gurgaon

star_rate star_rate star_rate star_rate star_rate 0 Reviews

zoom_out_map 31269 - 500000 Sq.Ft

12 Cr to 80 Cr

Property Sub Type
Office Space-IT Park/SEZ + Retail Space-IT Park/SEZ
Project Status
Ready To Move
near_me Contact

Free Site Visit

near_me Contact

By clicking Submit, you agree to send your info to Zricks.com Private Limited, who agrees to use it according to their Privacy Policy , Terms & Conditions ,Cookies Policy.

Key Details in DLF Big 10

Possession

Quarter 4, 2012

Project Span

55 Acre

Type

Resale

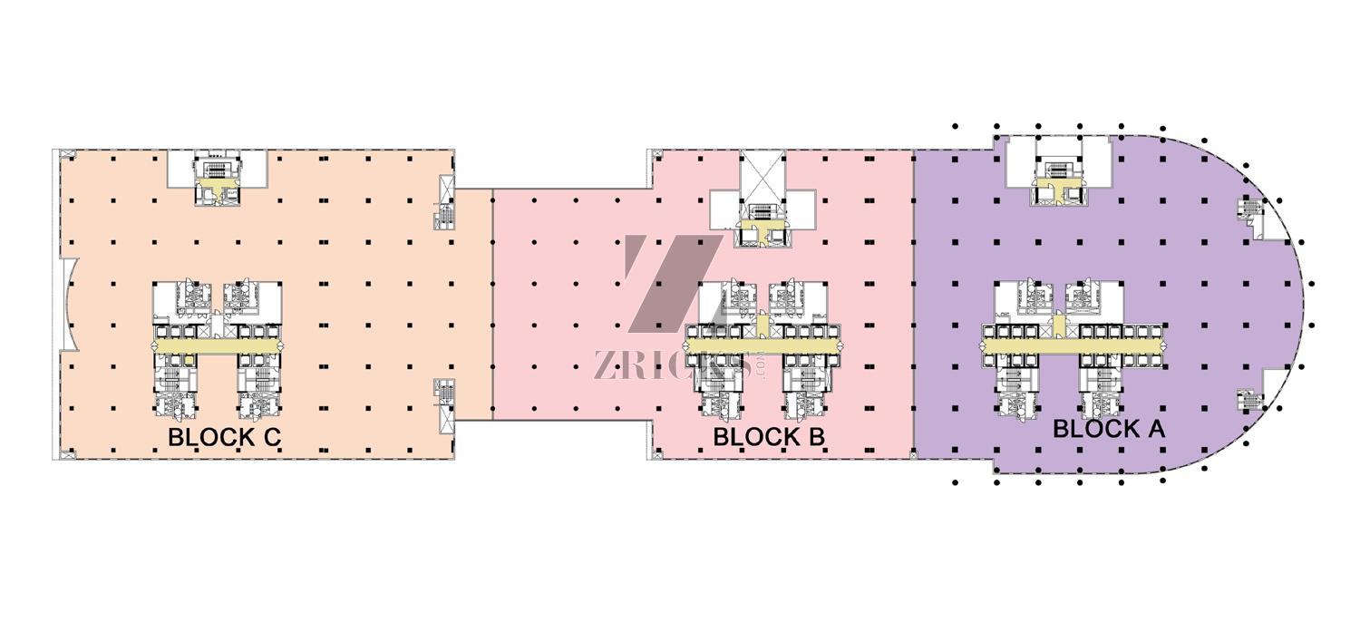
No. of Towers

3

Bank Approved

Yes

Furnished

Ready To Move

No. of Units

0

Approved By

TCP

DLF Big 10, located within DLF Cyber City in Gurgaon, right off the Delhi-Gurgaon expressway, is a commercial project that integrates IT/ITES companies all in one building. It covers a total area of 24,20,920 square feet and has been divided into three blocks – block A, block B and block C, all under a gated complex, whose status is now RTM. Keeping up with the overall architectural design of DLF Cyber City, Gurgaon, DLF Big 10 is designed with a modern aesthetic appeal and a façade that is made entirely of glass and metal. Futuristic elements added to the building give it the impression of strength, elegance and technological advancement.

Project USP

  • Exclusive amenities such as a gym, swimming pool, health club and business centre for all employees
  • Fiber optic connectivity and Wifi connectivity
  • 100% power back up
  • Effective Disaster Management Plan
  • Proposed ambulance facility
  • With a fire safety group formed, modern fire detection and suppression systems and state of the art smoke detectors
  • The building has been designed by taking into consideration the Seismic Zone regulations
  • The property is maintained by DLF Services Ltd

Project Consultants

  • Design Consultant – Hafeez Contractor 

Address

DLF Big 10, DLF Cyber City, DLF Phase III, NH-8, Gurgaon
Type Size Floor Plan Quote
Retail Space-IT Park/SEZ 31269 Sq. Ft. aspect_ratio email
Retail Space-IT Park/SEZ 50723 Sq. Ft. aspect_ratio email
Retail Space-IT Park/SEZ 60091 Sq. Ft. aspect_ratio email
Office Space-IT Park/SEZ 381998 Sq. Ft. aspect_ratio email
Office Space-IT Park/SEZ 705026 Sq. Ft. aspect_ratio email
Office Space-IT Park/SEZ 1191813 Sq. Ft. aspect_ratio email

Indoor Amenities

24X7 Power Back up
AC Lift Lobby
Air Conditioning
Intercom Facility
Wifi

Outdoor Amenities

24X7 Security
Bank/ATM
Broadband Connectivity
Cafeteria
Club House
Conference Room
Covered Parking
Gym
Health Facilities
Maintenance Staff
Medical Facilities
Open Parking
Service Elevator
Shopping Arcade
Swimming Pool
Visitor Parking
Waste Disposal
Water Storage

Free Site Visit

near_me Contact

By clicking Submit, you agree to send your info to Zricks.com Private Limited, who agrees to use it according to their Privacy Policy , Terms & Conditions ,Cookies Policy.

local_offer Don't miss out on the festive offers this month

Location Advantage

  • Located right off NH8 (width: 60m/150m) at the entrance of Gurgaon
  • Excellent connectivity via roads towards the domestic and international airports
  • Located within a prime, exclusive commercial centre
  • Surrounded by three Rapid Metro stations
  • Approximately 2.5 km away from Mehrauli-Gurgaon Road which gives way to South Delhi
  • 500 m (approx.) away from cyber city hub

360° Virtual Tour

DLF Big 10 360° Virtual Tour

You are Invited to Join 360° Virtual Tour

of DLF Big 10

DLF Big 10 Walkthrough

Free Site Visit

near_me Contact

By clicking Submit, you agree to send your info to Zricks.com Private Limited, who agrees to use it according to their Privacy Policy , Terms & Conditions ,Cookies Policy.

Questions & Answers (FAQs)

  • help What is the price range of DLF Big 10?
    The price range of DLF Big 10 is 12.0 Cr. to 80.0 Cr.
  • help What is the size or area range of DLF Big 10?
    The size range of DLF Big 10 ranges between 31269 to 500000 Sq.Ft
  • help Where is DLF Big 10 located?
    The site address of DLF Big 10 is DLF Big 10, DLF Cyber City, DLF Phase III, NH-8, Gurgaon .
  • help What is the construction status of DLF Big 10?
    The status of DLF Big 10 is Ready To Move .
  • help What is the possession date of DLF Big 10?
    The possession date of DLF Big 10 is Quarter 4 2012.

50+

Questions

View all Questions

50+

Answers

View all Answers

Ask a Question About
DLF Big 10

You're Invited to Open House this weekend!

calendar_today 23 Apr - 26 Apr 2026

Thursday to Sunday, 10 am onwards
Visit DLF Big 10 site to get On Spot Festive Benefits.

Invite code: Zricks.com

About Developer

DLF the most renowned name in the real estate sector on a global level was established in 1946. The company has a great record of sustained growth, customer satisfaction and innovation. DLF has developed some of the best residential, commercial and retail projects in Delhi-NCR and other states. The group follows a simple motto of sustained efforts to improve client value and quality along with ethical and professional service.
 

Since its establishment, DLF Limited developed its first residential colonies in East Delhi area of New Delhi, which was completed in 1949. Since then, DLF never looked back and developed the classy urban colonies of South Extension, Greater Kailash, Kailash Colony and Hauz Khas. DLF has also been credited with its first landmark in the real estate development project namely DLF Qutab Enclave and DLF City. DLF has contributed significantly to the development of Gurgoan’s skyline with a number of landmark residential as well as self-sustained commercial complexes.
 

DLF envisions to contribute significantly to the building of a new India and to become one of themost valuable real estate companies in the world. The mission of DLF includes developing world-class real estate concepts with the highest standard of professionalism, ethics, quality and customer service.

DLF Chairman Mr. Kushal Pal Singh has led the company in such a way that commitment to following ethical and legal practices has become a way of life. The overarching aim of the group is to provide luxurious lifestyle places to all where all amenities are close at hand. 

Nearby Projects

Request a Call Back

near_me Get Expert Advice Now

By clicking Submit, you agree to send your info to Zricks.com Private Limited, who agrees to use it according to their Privacy Policy , Terms & Conditions ,Cookies Policy.

Property Expert from NH 8 is Available.