Lodha Estrella verified_user

share

place Wadala , Eastern Express Highway , Mumbai

star_rate star_rate star_rate star_rate star_rate 0 Reviews

zoom_out_map 738 - 2100 Sq.Ft

1.85 Cr to 3.91 Cr

Property Sub Type
Apartment + Studio Apartment
Project Status
Under Construction
near_me Contact

Free Site Visit

near_me Contact

By clicking Submit, you agree to send your info to Zricks.com Private Limited, who agrees to use it according to their Privacy Policy , Terms & Conditions ,Cookies Policy.

Key Details in Lodha Estrella

Possession

Quarter 4, 2016

Project Span

23 Acre

Type

Original Booking, Resale

No. of Towers

1

Bank Approved

Yes

Furnished

Under Construction

No. of Units

512

Approved By

MMRDA

Lodha Estrella is a residential project located at Wadala, Mumbai. New Cuffe Parade presents its uber-sized luxury clubhouse, a 75,000 sq. ft. private haven where the finest lifestyle features, international facilities and amenities come together to add an entirely new dimension to luxury, comfort, aesthetics and functionality. The mega-structure has been designed by Wilson Associates, one of the world's foremost interior design houses and managed by our specialized hospitality partner, Saint Amand, will offer its residents, a lifetime experience of living in a five star hotel. Through their design, they aim to create new definitions of luxury for an era that's increasingly connected and culturally diverse. The impressive Clubhouse interiors create an exceptional environment for modern day corporate and business leaders to flourish.

Project USP

  • A completely gated community that promotes a sense of community living along with privacy
  • Project provides all the basic amenities that are required to meet all your needs
  • 3-tiered stringent security measures to ensure the safety of all students
  • Covered parking area with reserved spaces for all residents
  • Separate parking spaces for all guests and visitors
  • Several civic amenities such as premium schools, medical centers and hospitality outlets in the neighbourhood
  • Lush green surroundings and exquisite landscaping around the residential units
  • 100 % power back up for building and all common facilities to ensure smooth and uninterrupted running of the same

 

Lodha Estrella Rera

Authority: Maharashtra Real Estate Regulatory Authority RERA REGISTERED info

RERA Registration No: P51900000521

Address

Lodha Estrella, Eastern Express Highway, Wadala, Mumbai, Maharashtra,India.
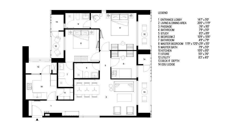
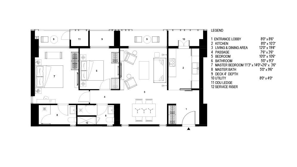
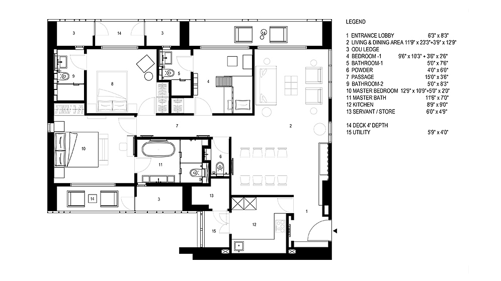
Type Unit Type Plot Size Size Floor Plan Quote
Studio Apartment 1 BHK 738 Sq. Ft. 738 Sq. Ft. aspect_ratio email
Apartment 2 BHK 1485 Sq. Ft. 1485 Sq. Ft. aspect_ratio email
Apartment 3 BHK 1764 Sq. Ft. 1764 Sq. Ft. aspect_ratio email
Apartment 3 BHK 2100 Sq. Ft. 2100 Sq. Ft. aspect_ratio email

Indoor Amenities

24X7 Power Back up
Air Conditioning
Intercom Facility
Servant Quarters
Vaastu Compliant

Outdoor Amenities

Garden
Health Facilities
Maintenance Staff
Club House
Broadband Connectivity
Cafeteria
Gym
Badminton Court
Basketball Court
Temple
Covered Parking
Open Parking
Joggers Track
Kids Play Area
Landscaped Park
Lift
Medical Facilities
Service Elevator
Shopping Arcade
Swimming Pool
Visitor Parking
Volleyball Court
24X7 Security

Free Site Visit

near_me Contact

By clicking Submit, you agree to send your info to Zricks.com Private Limited, who agrees to use it according to their Privacy Policy , Terms & Conditions ,Cookies Policy.

local_offer Don't miss out on the festive offers this month

Location Advantage

  • Located at Wadala in Mumbai
  • 2 km away from Eastern Express Highway
  • Easy connectivity to major areas of city
  • Major schools and hospitals situated at a distance of 1 km
  • Schools and Universities are in proximity to the society

360° Virtual Tour

Lodha Estrella 360° Virtual Tour

You are Invited to Join 360° Virtual Tour

of Lodha Estrella

Lodha Estrella Walkthrough

Free Site Visit

near_me Contact

By clicking Submit, you agree to send your info to Zricks.com Private Limited, who agrees to use it according to their Privacy Policy , Terms & Conditions ,Cookies Policy.

Lodha Estrella Update

Questions & Answers (FAQs)

  • help What is the price range of Lodha Estrella?
    The price range of Lodha Estrella is 1.8 Cr. to 3.9 Cr.
  • help Is Lodha Estrella RERA Registered? If Yes, What is the RERA Registration No of Lodha Estrella?
    Lodha Estrella is registered under MahaRERA. The RERA Registration No of Lodha Estrella is P51900000521.
  • help What is the size or area range of Lodha Estrella?
    The size range of Lodha Estrella ranges between 738 to 2100 Sq.Ft
  • help Where is Lodha Estrella located?
    The site address of Lodha Estrella is Lodha Estrella, Eastern Express Highway, Wadala, Mumbai, Maharashtra,India..
  • help What is the construction status of Lodha Estrella?
    The status of Lodha Estrella is Under Construction .
  • help What is the possession date of Lodha Estrella?
    The possession date of Lodha Estrella is Quarter 4 2016.

50+

Questions

View all Questions

50+

Answers

View all Answers

Ask a Question About
Lodha Estrella

You're Invited to Open House this weekend!

calendar_today 30 Apr - 03 May 2026

Thursday to Sunday, 10 am onwards
Visit Lodha Estrella site to get On Spot Festive Benefits.

Invite code: Zricks.com

About Developer

Established in 1980, privately held Lodha Group is India's No 1 real estate developer and amongst the world's select multinational real estate developers with presence in India and the United Kingdom. 

The Group is currently developing an estimated 43 million sq ft of prime real estate with the largest land reserves in MMR, and has 28 ongoing projects across London, Mumbai, Pune and Hyderabad.

The Lodha Group has several landmark developments to its credit including World One - the world's tallest residential tower, and Palava City - the largest private development in the world. The group has brought some of the top global names including Armani/Casa, Trump, Philip Starck, Jade Jagger, Greg Norman and Pei Cobb Freed to India. The Group has recorded the biggest land deal in India till date, buying a plot for INR 4,053 Cr from the Mumbai Metropolitan Region Development Authority (MMRDA) in 2010, where it is developing New Cuffe Parade, a world-class mixed use development set to become the new city centre of Mumbai. 

In the last 12 months, the group has acquired two other notable land parcels in Mumbai - the 17 acres Mumbai Textile Mills parcel for ~INR 2,727 Cr from DLF, and the famous Washington House property on Altamount Road from the American government. Lodha group's total land reserves add up to over 5,800 acres. In April 2014, Lodha acquired an 88-acre land parcel in the Thane region for INR 1,154 Cr from Clariant India. With offices in London, Dubai and Shanghai and planned openings in the USA and Singapore, the Group is on the road to substantial international presence. 

Nearby Projects

Request a Call Back

near_me Get Expert Advice Now

By clicking Submit, you agree to send your info to Zricks.com Private Limited, who agrees to use it according to their Privacy Policy , Terms & Conditions ,Cookies Policy.

Property Expert from Eastern Express Highway is Available.